Jasa Konsultan Lay Out / Denah, Tampak, Potongan Bangunan - Desain Arsitektur - IMAGE BALI ARSITEK & KONTRAKTOR - Indonesia
Jasa Konsultan Lay Out / Denah, Tampak, Potongan Bangunan - Desain Arsitektur - IMAGE BALI ARSITEK & KONTRAKTOR - Indonesia

Jasa Konsultan Lay Out / Denah, Tampak, Potongan Bangunan

jasa konsultan lay out denah tampak potongan bangunanSebelum mendirikan bangunan ataupun membangun rumah tinggal, sudahkah Anda merencanakan denah lay out ruang yang ideal?

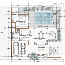
Lay out rumah adalah rancangan ruang-ruang yang ada di dalam rumah. Dengan merancang lay out rumah secara maksimal maka Anda akan mendapatkan ruang-ruang yang terakomodir secara fungsional dan ideal. Bagaimana Anda dapat merancang pengelompokan ruang-ruang publik, ruang-ruang privat, serta ruang servis di dalam rumah idaman Anda.

Dengan adanya lay out /denah rumah, maka Anda akan dapat memperkirakan bagaimana sirkulasi dalam rumah, dan bagaimana zona ruang Anda terbagi dengan baik. Kesalahan yang sering dilakukan adalah banyak orang yang tidak memperkirakan penempatan ideal bagi zona publik, zona privat, dan zona servis. Sehingga sirkulasi di dalam rumah akan tumpang tindih serta pembagian sekat tidak ideal dan membuat rumah menjadi gelap dan sempit. Belum lagi masalah privasi dan kemudahan komunikasi yang terhambat.

Untuk itu Anda harus dapat memperkirakan kira-kira lay out apakah yang sesuai dengan rumah Anda nanti, apakah lay out terbuka, lay out tertutup, ataukah lay out kombinasi? Untuk menentukan hal ini Anda harus memiliki kemampuan arsitektur yang baik, karena hal ini adalah berkaitan dengan perancangan. Namun, bagaimana jika Anda belum memiliki kemampuan perancangan tersebut?

Lalu apa yang harus Anda lakukan?

Saat ini kita harus banyak bersyukur dengan kemajuan teknologi. Dengan telah membaca artikel kami, Anda sudah memecahkan 50% masalah Anda dalam merancang lay out/denah rumah yang ideal. Lay out /denah rumah yang kami rancang adalah lay out yang sesuai dengan besar dan luasnya lahan Anda, kebutuhan Anda akan ruang, dan karakter Anda sebagai pemilik rumah. Dengan menggunakan jasa konsultan lay out/denah, tampak, potongan bangunan dari kami (www.imagebali.net ) maka Anda akan mendapatkan sirkulasi yang baik di dalam rumah. Serta penempatan zona ruang sesuai kebutuhan dengan ideal. Tidak akan ada lagi masalah tumpang tindih, sirkulasi yang berantakan, privacy yang tak terjaga, dan ruang yang kurang pencahahayaan di dalam rumah idaman Anda. Bergabunglah bersama kami!
Jasa Desain Arsitektur Lainnya :